Prodaja, Parcela, Zazidljiva, Podravska, Zrkovci, parcela z gradbenim dovoljenjem

200.000 €

MariborZrkovci2903 m2

Opis

Odlična priložnost za investicijo: parcela za gradnjo poslovno-stanovanjske stavbe s pridobljenim pravnomočnim gradbenim dovoljenjem. Poslovna dejavnost za zdravstvene namene.

Zemljišče je umeščeno med lokalno cesto in lastno dovozno cesto in nudi panoramski pogled proti Malečniku. Zemljišče, ki je namenjeno za pozidavo meri 1.907m2, površina 996m2 predstavlja lastno dovozno cesto. Neposredno ob parceli so vsi potrebni komunalni priključki. Zemljišča so od avtocestnega priključka Maribor vzhod oddaljena le 2 minuti vožnje, do centra Maribora je le 8 min vožnje. 

Za gradnjo poslovno stanovanjske stavbe je bilo pridobljeno gradbeno dovoljenje, komunalni prispevek plačan. Omogočena takojšnja gradnja. Investitor je predvidel gradnjo 2 stanovanj in poslovno dejavnost –  ambulanta fizioterapije in zobozdravstvena ambulanta.

Na zemljišču so narejene tudi vrtine za potrebe črpalke na geotermalno energijo in pridobljeno vodno soglasje. Narejen je izkop za strojnico. 

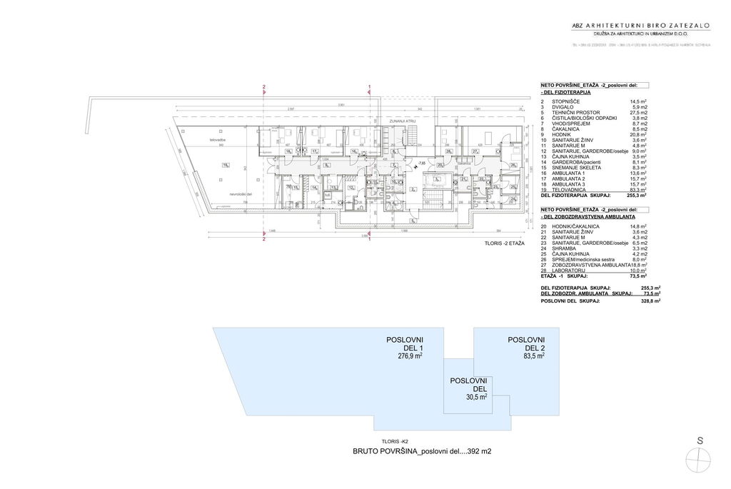
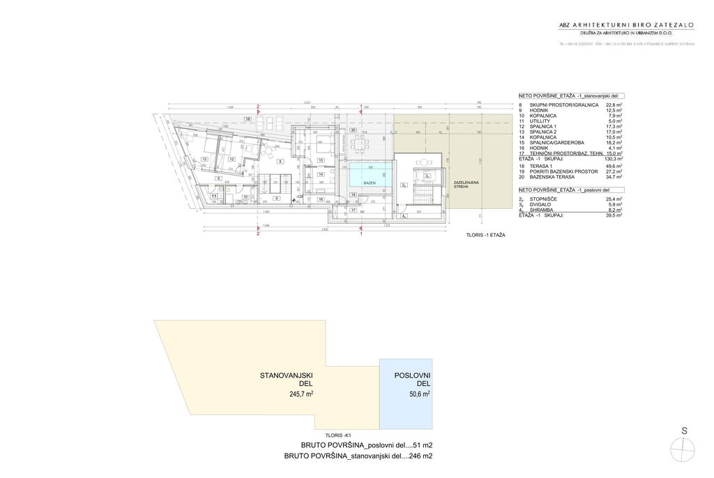
Objekt obsega skupno kvadraturo 994 m2 etažnosti P+K1+K2 in je terasasto umeščen v pokrajino. Kvadrature posameznih nadstropij:

- pritličje P: stanovanjski del 227,70 m2,

- klet K1: stanovanjski del 241,80 m2,

- klet K2: poslovni prostor 328,8 m2.

Poslovni prostor ima dostop iz pritličja do kleti v -2 z dvigalom. Poslovni prostor obsega ambulanto fizioterapije in ambulanto za zobozdravstvene storitve oz drugo zdravstveno dejavnost.  

Objekt je predviden kot AB konstrukcije z vmesnimi AB in opečnimi stenami. Streha je predvidena ravna z ekstenzivno ozelenitvijo. Fasada delno kontaktna, delno steklo. Stavbno pohištvo ALU. 

Investitor lahko vloži tudi spremembo gradbenega dovoljenja za gradnjo celotne stanovanjske stavbe.

Bodoči investitor samo prijavi začetek gradnje in zakoliči objekt!

 

Dodatno

Primerljive nepremičine